1 引言
欧盟,北美,日本等是当今重要的移动通信基站设备制产品的主要市场,随着这些地区和国家的电磁兼容技术标准,技术法规越来越严格,各个企业在符合各个区域市场准入要求方面面临越来越大的困难和压力。传统的电磁兼容(EMC)设计经验和要求,限制了设计的创新,各个基站设备制造厂商在研发过程中从原型机到最终定型机往往需要大量的调试,验证和整改,这导致各个产品之间的一致性比较差。本文首先简要介绍移动通信基站产品的电磁兼容验证,包括验证需求,验证方法以及设计整改,然后介绍当今部分重要的基站产品制造厂商通过合理的电磁兼容设计,验证,整改等方面的投资,在电磁兼容各项评价性能需求上达到的新高度。
2 移动通信基站产品的电磁干扰验证
移动通信基站产品的电磁干扰验证包括传导干扰(Conducted Emission)验证和辐射干扰(Radiated Emission)验证。
移动通信基站产品的传导干扰是基站设备产生的干扰信号通过电源线或信号线对外传导产生的干扰,辐射干扰是基站设备产生的干扰信号通过空间耦合的形式对外辐射产生的干扰。
电源线包括交流电源线和直流电源线。交流电源线一般外接单相或三相市电,直流电源线一般外接交流/直流转换单元或者外接备用电池。按照接口和功耗的要求设计电源线线端接头和口径大小,外面直接加绝缘层。
信号线包括电信传输线,控制信号线和射频信号线。电信传输线一般为E1线,它承载基站系统和电信网之间的数据传输。E1线连接移动通信基站和上级网络单元:在GSM系统中连接BTS和BSC,在3G系统中连接Node B和RNC。控制信号线承载基站内部单元模块的控制信号,基站之间同步信号和外部时钟信号等,如基站风扇单元的EC(Enclosure Control)线,ESB(External Synchronization Bus)线和GPS线等。电信传输线,控制信号线和射频信号线有不同的线序和接口,但都要求外加金属屏蔽层和绝缘层。
移动通信基站产品电磁干扰验证需求依据欧洲的ETSI301489-1和北美的FCC Part15&22&24,验证方法依据CISPR22/EN55022。国际标准对电磁干扰验证的需求如表2-1。电源线的传导干扰验证一般在屏蔽室中进行,方法是在移动通信基站和外部供电设备之间接入人工电源网络,辅助设备需要接耦合退耦网络,网络利用容性电路将移动通信基站产生的高频噪声电压信号耦合到接收机,同时利用感性电路将外部供电设备产生的高频噪声信号阻隔在接收机以外。信号线的传导干扰验证方法是,在信号线屏蔽层上对地端接150欧姆电阻,在移动通信基站一侧加电流钳测量高频电流噪声,在辅助设备一侧加退耦钳消除外部高频噪声的影响。辐射干扰验证一般在半电波暗室中进行,方法是一定距离处放置锥形接收天线(低频)/喇叭接收天线(高频),通过旋转转台和接收天线高度,测量移动通信基站在整个频段,全向角度,各个高度和不同极化方向所产生的空间辐射噪声场强。
对于移动通信基站产品的电磁干扰,一般采用屏蔽隔离,接口滤波,内部电路结构调整等整改方式。如图2-2。这使得我们的产品一般在传导干扰方面,比较国际标准最严酷等级class B仍然有6dB以上的余量;在辐射干扰方面,比国际标准最严酷等级class B仍然有10dB以上的余量。
图2-2 移动通信基站产品的电磁干扰整改举例
3 移动通信基站产品的电磁抗扰验证
移动通信基站产品的电磁抗扰验证包括电快速瞬变脉冲群(Electrical Fast Transient),浪涌(Surge),传导抗扰度(RF Common),辐射抗扰度(Radiated Immunity)等。
电快速瞬变脉冲群是电网中切断感性负载,继电器触电弹跳等动作产生的高频脉冲序列,通过传导的方式经电源线进入设备,也可以空间耦合到信号线进入设备。实践证明,当电路中机械开关对电感性负载的切换经常会对电路中的移动通信基站设备产生干扰,这种干扰的特点是脉冲成群出现,脉冲重复频率较高,脉冲波形的上升时间短暂,但单个脉冲的能量较小,一般不会造成设备故障,但使设备产生误动作的情况经常出现。
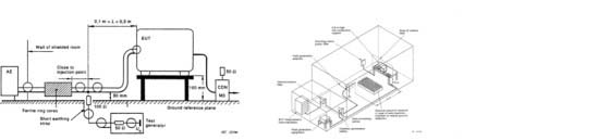
移动通信基站产品电快速瞬变脉冲群干扰验证需求依据欧洲ETSI301489-1(北美FCC不做要求),验证方法依据IEC61000-4-4。国际标准对电磁干扰验证的需求为AC电源线1kV,DC电源线和信号线0.5kV。信号发生器模拟产生一脉冲群序列,脉冲波形5/50ns,脉冲持续时间为15ms,脉冲持续周期为300ms;通过耦合退耦网络注入到电源线,耦合端常为33nF的电容,退耦端常为大于100uH的电感,一般要求耦合增益大于20dB,退耦增益小于2dB;或者通过50-200pF的容性耦合钳空间耦合至信号线。如图3-1。
对于电快速脉冲群干扰,一般采用接口滤波,铁氧体磁环,TVS叠层压敏电阻等整改方式。脉冲群干扰对线路中半导体器件结电容充电导致线路误动作:上述器件可以对共模信号表现出较大电感量可以抑制干扰。如图3-2。合理设计和使用整改器件的大小和特性使得我们的产品AC电源线验证级别可以达到4kV,2.5kHz,DC电源线和信号线验证级别可以达到2kV,5kHz。要求基站产品在实验中仍能保持正常通信和射频指标正常。
浪涌是开关或雷电等动作产生的过电压,通过传导的方式经电源线和信号线进入设备。目前大部分设备制造商对设备端口的防雷保护以及防雷器件的认识水平不高,即使有防雷设计,但由于忽视设备实际工程中的良好接地与合理布线,导致设备使用中出现损坏。
移动通信基站产品浪涌验证需求依据ETSI301489-1(北美FCC不做要求),验证方法依据IEC61000-4-5。国际标准对电磁干扰验证的需求为AC电源线2kV,信号线为0.5kV。信号发生器模拟产生浪涌波形,脉冲波形1.2/50(8/20)us,一般加载正负波形各5次,每次间隔1分钟;通过耦合退耦网络注入到电源线,耦合端常为18uF的电容,退耦端常为大于1.5mH的电感;或者通过10nF的接地电容注入至信号线的屏蔽层。如图3-3。
对于浪涌干扰,一般采用热敏电阻压敏电阻,气放管,半导体放电管等整改方式。如图3-4。综合考虑上述整改器件的接口速率,工作电压,驱动电流,电路形式等可以使得我们的产品AC电源线验证级别可以达到6kV,DC电源线验证级别可以达到1kV,信号线验证级别可以达到4kV的10/700us波形,射频线验证级别可以达到5kA的10/350us波形。

图3-4 移动通信基站产品的浪涌整改举例(热敏电阻,气体放电管,半导体放电管)
传导和辐射抗扰度验证是综合考察一切电磁干扰可能对设备的影响。
移动通信基站产品传导和辐射抗扰度验证需求依据ETSI301489-1(北美FCC不做要求),验证方法依据IEC61000-4-6和IEC61000-4-3。国际标准对电磁干扰验证的需求为150k-80M 3V的传导电磁波和80M-3G 3V/m的辐射电磁波。如图3-5。
对于传导和辐射干扰,可能用到上述提到的各种整改方法。这使得我们的产品验证级别达到10V和10V/m的辐射电磁波。

图3-5 移动通信基站产品的传导抗扰和辐射抗扰验证方法
综上所述,合理地对移动通信基站产品的电磁兼容设计和验证进行投入,不仅可以使产品的电磁兼容性能指标满足国际国内标准,甚至可以做到性能相当优越。
4 总结
国内目前的电磁兼容研发力量和资金投入严重不足,缺少专业EMC人员参与设计和调试,缺乏相应的软件进行EMC的分析和设计,只是通过大量的经验积累总结出一定的规范性规则(例如:屏蔽,接地,滤波和PCB布线等)。除去少量移动通信基站设备制造厂商在PCB,电源,机柜设计阶段就应用了EMC分析和技术手段,绝大多数企业的设备EMC设计水平还停留在事后补救的阶段,也就是说在产品设计过程中并未考虑EMC方面的要求,设计完成后如果EMC测试未能通过则再进行加固设计。
只有部分大型制造厂商有专业的EMC人才,使用仿真软件进行原理验证。在产品设计阶段进行EMC设计,实际上可以降低EMC整改的成本和节约巨额的测试费用。一些重要的基站设备制造厂商甚至已经有能力建造自己的EMC测试平台。所以说,规划科学而且可以持续发展的电磁兼容设计和验证流程,是成熟的移动通信基站制造厂商的必经之路;不拘泥于只满足基站产品的功能和射频指标,通过合理的设计整改和验证使得电磁兼容性能参数指标优于国际国内标准,也是整个行业技术上升到新高度的体现。

粤公网安备 44030902003195号